Дизайнер интерьера Екатерина Никонорова о том, из чего состоит погода в доме и как выглядит комната для хороших оценок

erid: 2SDnjcyt6E9
Последняя четверть учебного года подходит к концу. Старшеклассники готовятся к экзаменам, а остальным через три месяца снова предстоит сесть за парту. Родителям пора уже сейчас подумать, как сделать учебный процесс ребенка максимально продуктивным.
Журналист ProGorodSamara вместе с дизайнером интерьеров отправился в новый ЖК, чтобы показать, как организовать пространство для работы и отдыха детям и всей семье.
Читайте также
Порядок в комнате – порядок в голове. Особенно это важно для детей, ведь они очень легко отвлекаются и переключают внимание по любому поводу. Поэтому пространство в детской комнате должно быть четко разделено. Как организовать комнату для школьника, нам рассказала дизайнер интерьера Екатерина Никонорова.
«Обожаю смелые индивидуальные интерьеры. Полностью сопровождаю ремонт заказчика: от разработки дизайн-проекта до выбора декора».

источник: Екатерина Никонорова
– Как обустроить детскую, чтобы ребенок ни на что не отвлекался? На самом деле, никак, – смеется Екатерина. – Отвлекаться ребенок будет в любом случае, потому что он ребенок.
Да, это особенность детской психики, однако родители все же могут сделать процесс обучения для ребенка максимально комфортным и продуктивным.
Пункт 1. Грамотно выбрать место
Помним, что нужно уместить кровать, рабочий стол, шкафы, да еще и шведскую стенку для тренировок, так что места нужно много.
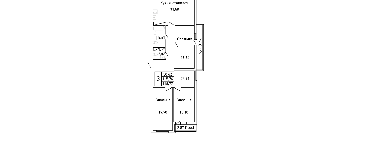
Ребенку стоит выделять в комнате минимум 15 кв.м, ведь там должна разместиться и рабочая зона, и игровая, и спальная. Ну и конечно, шкафы и ящики с личными вещами, игрушками, одеждой. Такие комнаты есть в новых домах, например, в ЖК «Король Лев», куда мы и отправились с дизайнером. Здесь и покажем пример грамотного распределения метража в трехкомнатной квартире.
.png)
источник: ProGorodSamara
Пункт 2. Естественный источник освещения
Одной настольной лампы мало – в комнате должен быть естественный источник света. А еще нужно обязательно делать перерыв между уроками и смотреть в окно – это хорошее упражнение для глаз.
– Стол в идеале ставить справа или слева от окна,смотря какой рукой пишет ребенок. А если есть возможность прямо перед окном поставить – это еще лучше.
В обеих детских есть два больших окна, перед которым как раз отлично разместится письменный стол. Все необходимое для учебы должно быть на расстоянии вытянутой руки, поэтому поблизости стоит разместить комод или тумбу с учебными принадлежностями. Вдоль стены у стола можно поставить шкафы для одежды, книг и игрушек. Подальше уместится и спортивный уголок.

источник: ProGorodSamara
Пункт 3. Выбрать тихое место в квартире
Лучше всего, если комната будет подальше от кухни или гостиной – там обычно мама готовит ужин, а папа смотрит телевизор. Это создает лишний шум и отвлекает от работы. Рабочий стол должен находиться в спокойной части квартиры, подальше от игровой зоны и мест активного движения.
В «Короле Льве» как раз есть удачные планировки – кухня-гостиная располагается в одной части, а спальни на 15 и 17 кв.м в противоположной. При необходимости детские комнаты можно расширить – вынести стены в коридор. Тогда пространства для учебы и отдыха станет еще больше. В «трешках» в «Короле Льве», кстати, два балкона, выходящих на разные стороны. Так что личное пространство детей и родителей не будет пересекаться.
Конструкция позволяет менять расположение стен по желанию хозяев.Или же можно устроить гардеробную в кармане между родительской и детской спальнями.

источник: ЖК «Король Лев»
Пункт 4. Нейтральные оттенки в интерьере
На вопрос о том, в каких цветах лучше всего оформить детскую, Екатерина ответила, что существуют разные теории. Первая говорит о том, что в детскую нужно добавлять больше цвета – ребенок развивается, его глазам должно быть интересно, в однотонной комнате ему будет скучно. Но есть и противоречащая теория, по которой наоборот рекомендуется делать стены однотонными. Потому что в детской и так будет слишком много разноцветных элементов: игрушки, картинки, книжки. Так что если цвета будет слишком много, то это будет явным перебором.
Здесь Екатерина уточняет:
– Мое мнение такое: цвет можно добавлять, главное, чтобы все было в балансе, оттенок был не «вырвиглазным», а спокойным и приятным, даже лучше природным. Но все-таки цвета должны быть.
Мебель и прочие предметы интерьера при необходимости могут разбавить цвета, чтобы все выглядело гармонично.
– Мебель и какие-то большие детали интерьера стоит организовывать так, чтобы мелкие пестрые игрушки и прочие предметы не так бросались в глаза.
Пункт 5. Сократить время на дорогу и сборы
Факторы, способствующие продуктивности, не заканчиваются на комнате. Если ребенок быстро приходит из школы, не тратит время и нервы на дорогу, это в разы увеличивает его продуктивность. В этом плане район ЖК «Король Лев» тоже удачный.
Рядом несколько школ, успевших заслужить доверие самарцев качеством образования:
- №148;
- №132;
- Интеллект-плюс;
- СамЛИТ;
- МТЛ;
- Спутник.
Также есть детские сады, больницы, торговые центры – родители будут спокойны, а ребенок сможет спокойно гулять с друзьями после уроков без ущерба учебе.
Пункт 6. Организовать досуг ребенка
Продуктивность в отдыхе – залог эффективности в работе. Поэтому не забывайте организовывать досуг ребенка. В комнате должны быть и книги, и настольные игры, и все нужное для хобби. Но это все тоже нужно где-то хранить. Если в комнате размером 17 кв. м с одной стороны поставить рабочий стол и кровать, а с другой – шкафы и стеллажи, то все вещи ребенка прекрасно поместятся. А чтобы не создавать ощущение хлама и бардака, можно использовать ящики, ковры, дополнительные полки для хранения.
Чаще выбирайтесь гулять все вместе, особенно если проживаете на удачной локации, где все рядом. В этом плане ЖК «Король Лев» тоже хорош – он расположен на Московском шоссе, между ТЦ Вертикаль и ТК Караван. Чтобы обеспечить хороший отдых себе и школьнику, в выходные и во время каникул можно ездить в парки, кино, музеи и театры. Благодаря хорошей транспортной развязке от дома легко добраться до Набережной, культурных и развлекательных объектов – ведь это важно! Отдых должен быть разнообразным и насыщенным.

источник: ProGorodSamara
Детям важно обучаться в комфорте, но взрослым не стоит забывать и о собственной продуктивности. Родительская спальня и общие комнаты тоже должны отвечать потребностям обитетелй квартиры. В «Короле Льве» есть кухня-столовая в 32,5 кв. м – кстати, удобная площадь.
В некоторых квартирах жильцы объединяют кухню с комнатой, чтобы получилась просторная кухня-гостиная. Здесь же никакой комнатой жертвовать не нужно. Можно сразу обеденную зону соединить с зоной отдыха, поставить там диван и телевизор. В центре гостиной хорошо будет смотреться стол – будет близко и к кухонной зоне, и к окнам, благодаря которым комнату наполняет дневной свет. По вечерам же семья, сидя за столом, сможет любоваться огнями ночного города.
 (1).png)
источник: ProGorodSamara
Большим плюсом будет живописный вид из окна – далеко не во всех домах такое доступно. В ЖК «Король Лев» с верхних этажей открывается вид на Волгу и городские улицы. Такие виды благотворно влияют на психику, не только детскую, но и взрослую. Ведь когда из окна открывается панорамный вид, человек чувствует себя свободнее и расслабленнее, у него исчезает ощущение спешки и подавленности.


источник: ProGorodSamara
Помимо двух детских комнат здесь есть и комната для родителей, и кухня-гостиная в отдельной части квартиры. Там нет проходных зон – никто никому не мешает.
Не забываем, что родительская и общие комнаты тоже влияют на настроение жителей квартиры. От цвета стен в гостиной, кухне или ванной может зависеть настроение и продуктивность.
– Цвета могут нас расслаблять, заряжать, поднимать аппетит, успокаивать, – говорит Екатерина.
Например, красный цвет возбуждает психику и вызывает учащенное сердцебиение, вызывает усталость. Синий цвет создает ощущение покоя, способствует снижению аппетита, полезен перед сном. Желтый же, наоборот, возбуждает аппетит, а также тонизирует нервную систему и стимулирует умственные способности. Зеленый – способствует концентрации внимания.
– Природные приглушенные цвета – это общий тренд в дизайне. Хорошо сочетаются те цвета, которые встречаются вместе в природе.

источник: ProGorodSamara
Трехкомнатные квартиры здесь площадью 118 кв.м, да еще и по самым выгодным ценам в этом районе – от 115 тысяч рублей за квадратный метр. А район очень привлекательный – в первую очередь, развитой инфраструктурой.
.png)
.png)
источник: ProGorodSamara
Не забывайте, что интерьер, планировка, расположение дома влияют на продуктивность каждого члена семьи. Когда все рядом, можно больше времени уделять друг другу. Если же пространство квартиры организовано правильно, ничто не будет отвлекать детей от занятий, а учебный процесс станет более результативным.
Реклама. ООО СЗ «Самарский хлебозавод №9»
Проектная декларация на сайте нашдом.рф



