Просторная кухня-гостиная и мастер-спальня: дизайнер рассказала, о каких квартирах мечтают самарцы

Наталия Лапаева Автор статьи
Корреспондент PROGORODSAMARA узнала о трендах в...

Многие владельцы квартир сейчас заказывают дизайн-проекты и просят специалиста сопровождать их в процессе обустройства жилья. Корреспондент PROGORODSAMARA узнала о трендах в мире дизайна интерьера, самых удобных планировках, мечтах самарцев и трудностях, с которыми они сталкиваются при ремонте.

Сейчас всё больше самарцев предпочитают покупать квартиры в строящихся домах. Чтобы жить в современной удобной квартире, сделать ремонт для себя, иметь возможность возвращаться после работы в место, которое действительно радует и успокаивает. Мы поговорили с самарцами, которые приобрели квартиры в новом ЖК, узнали их мечты и ожидания, и попросили самарского дизайнера Екатерину Никонорову помочь им в вопросах предстоящего ремонта. На примере квартир ЖК «Легенда» дизайнер расскажет о модных тенденциях и стильных интерьерных решениях.

- Мы живем в двухкомнатной квартире, которую нам оставили родители, - говорит 32-летняя Анастасия Авилова. - Мечтали о большой современной квартире, и вот, наконец, она у нас есть. В ЖК «Легенда». Предстоит ремонт и хочется понять, что сейчас в моде, какие тренды – мы еще пока ничего не выбрали, присматриваемся, сомневаемся и я даже не знаю какого цвета выбрать кухонный гарнитур.

- Основной тренд - природные цвета – поясняет дизайнер интерьера Екатерина Никонорова. - Зеленые, синие, коричневые, черные, белые, желтые. Все они должны иметь оттенок натуральности, как зеленая трава, голубое небо, цветы, камни, деревья.

Чем больше натуральности, тем более современным будет выглядеть интерьер. Для того, чтобы в квартире много всего поместилось нужно выписать по максимуму всё, что у вас есть. Выписывая и проводя инвентаризацию, вы выкинете большую часть вещей и освободите много места. И советую обратиться к дизайнеру, который поможет вам продумать все места для хранения в вашей квартире.

PROGORODSAMARA: Какие сейчас квартиры-мечты? Какой должна быть квартира, чтобы соответствовать трендам?

- Первое, что вспоминается – это панорамные окна, либо широкоформатные окна, два санузла в квартире и предусмотренные заранее ниши под шкафы. И еще совмещенная просторная кухня-гостиная, особенно если в ней два окна. Ну и конечно, мечта многих людей - мастер-спальня. Чтобы в ней была своя гардеробная, свой санузел, а в санузле окно, чтобы можно было ванну поставить.

- Сейчас наша семья в стадии ремонта новой квартиры, - рассказывает Артем Симонов, 34 года. – И основной наш запрос и переживание в том, чтобы в двухкомнатной квартире разместить много вещей. Как и где организовать зоны хранения?

- Чаще всего обращаются с подобными вопросами семьи с двумя детьми и большим количеством детских вещей, - отвечает Екатерина Никонорова. - Всегда важно: уместить всё: зоны отдыха общего пользования, индивидуальные зоны отдыха, хранение, уборка, готовка. Исходя из этого каждый выбирает то, что ему больше нравится. Гардеробная или встроенный шкаф? Если у планировки есть возможность сделать отдельную гардеробную, давайте ее делать. Но если планировка в квартире сделана таким образом, что удобнее сделать просто длинный встроенный шкаф, то лучше делать шкаф. Лично мои предпочтения - делать встроенные шкафы. Кроме того, чтобы было комфортно жить в квартире, нам нужно предусмотреть разные зоны. Зона приготовления еды – кухня. Зона отдыха – гостиная, зона сна и т.д.

Зоны хранения можно делать как в комнатах, так и в коридоре. Но я считаю, что лучше зоны хранения делать по комнатам, потому что так будет чище в квартире. Важно предусмотреть прачечную – она может располагаться в большом санузле или быть отдельной комнатой, где будет также и хозяйственный шкаф со всеми вещами для уборки.

- Мы на этапе выбора квартиры в новых домах, - рассказывает Елена Коваленко, 41 год. – Хотим переехать в просторную современную квартиру, выбираем планировки. По многим факторам выбрали ЖК «Легенда» - в первую очередь ориентируясь на положительную репутацию застройщика и местоположение, плюс современная школа поблизости – это важно для наших детей. Хотелось бы узнать профессиональную оценку планировок квартир и какие бы интересные решения по обустройству этих планировок посоветовала дизайнер.

По нашей просьбе Екатерина Никонорова посмотрела планировки двух и трехкомнатных квартир ЖК «Легенда» и рассказала, как можно распланировать пространство.

Трехкомнатная квартира: собственный санузел, гардероб и спальня у каждого

Схема трехкомнатной квартиры в ЖК "Легенда"

Шикарная трехкомнатная квартира. Она оптимальна для семьи с двумя детьми. Много технических помещений, два санузла, место под гардеробную, огромная комната по центру, возможность сделать мастер-спальню.

1. Ставим перегородку между входом в спальню и входом в санузел – она и послужит дверью в мастер-спальню. Соответственно взрослые будут иметь свой собственный санузел, свою собственную гардеробную и спальню.

2. Рядом делаем второй общий санузел для остальных членов семьи. Тут можно разместить ванную и душевую и это законно, потому что мы находимся на нежилой зоне и здесь можно делать мокрые зоны. Где же тогда сделать гардеробную? Мы перенесем ее в место, где сейчас обозначен санузел с площадью 2,14 кв.м.

3. Здесь большая комната,23,74 м. с двумя окнами. При желании ее можно разделить и сделать две отдельные детские с двумя отдельными входами, либо мы можем разместить в одной комнате двух детей.

4. Еще тут есть вытянутая зона кухни-гостиной общей площадью 20 кв. метров. Этого достаточно для размещения самой кухни и мягкой зоны. При этом удобно можно разместить телевизор и диванную группу.

Вариант планировки от Екатерины

Таким образом, у нас появятся один общий санузел, мастер-спальня и довольно просторная гардеробная и две детские, большая гостинная для всей семьи.


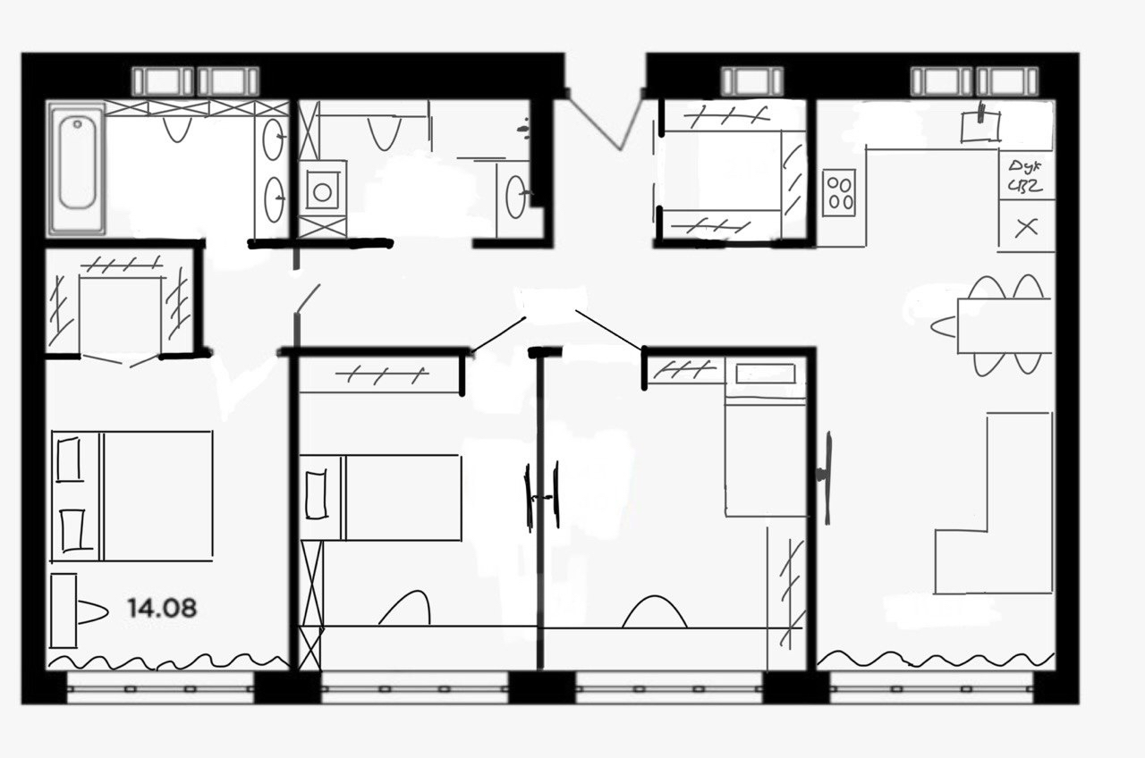
Двухкомнатная квартира: две стороны и большой коридор


Очень привлекательная двушка. То, что она находится на две стороны – большой плюс. В квартире будет свежо, легко проветривать. Здесь можно ничего не менять и использовать ту планировку, которая есть. Отмечу нишу под гардеробную и большой коридор. За счет этого квартира будет светлая, просторная и не будет ощущения тесноты.

1. Вытянутую комнату 20 кв.м. лучше сделать под детскую, потому что такая форма позволяет разместить две кровати рядом друг с другом, а напротив сделать учебную либо игровую зону. Также есть возможность установить зону для хранения.

2. Кухня здесь ёмкая, но не тесная. Можно кухню сделать углом и организовать обеденную зону с мягкими стульями (удобно есть и отдыхать перед телевизором), либо поставить диван, раскладной стол.

3. Санузлы я бы оставила в том состоянии, в котором они есть – два санузла, в одном и ванная и санузел, а в другом унитаз с раковиной. Плюс такого содержимого в том, что большая семья будет совершать утренние процедуры и не пересекаться – удобная логистика этих зон.

Если, например, эту квартиру покупают люди лет 45-60, у которых дети выросли и живут отдельно, то квартиру можно видоизменить.

1. Спальню сделать в комнате 20,62 м.

2. Кухню и соседнюю комнату (16,32 кв.м.) объединить в просторную кухню-гостиную, где можно разместить всё, что угодно. И столовую зону с большим столом, и диванную зону и кухонную. При этом в данном пространстве легко найти место под рабочую зону, если люди работают из дома.

В жилых кварталах «Легенда» есть всё для того, чтобы создать и обустроить квартиру, соответствующую всем модным тенденциям. Предусмотрены кухни-гостиные, мастер-спальни, места хранения, гардеробные, панорамные окна. Квартиры, по оценке специалистов, просторные, светлые, с большими возможностями для стильных дизайнерских решений. К тому же ЖК распложен в хорошем месте – город будет развиваться в этом направлении. Рядом ТЦ «МETRO», новая школа, детский сад, инфраструктура. В общем, всё, что нужно для жизни современному городскому жителю.

По всем вопросам обращаться в колл-центр корпорации «Виктор и Ко» по телефону 379–25–25
viktorco.ru
Застройщик ООО «Специализированный застройщик «ССК-ЮГ».
Проектная декларация на сайте наш.дом.рф
LjN8KHQMZ

Реклама ООО «СПЕЦИАЛИЗИРОВАННЫЙ ЗАСТРОЙЩИК «ССК-ЮГ»