Стали известны новые подробности о ситуации с парковкой в новом ЖК на Стара-Загора в Самаре

Фото: редакция ProGorodSamara
В Кировском районе обсуждается проект строительства жилого дома на улице Стара-Загора, 249а. Поводом для общественной дискуссии стали публикации в СМИ, а также заявление депутата Александра Милеева, который сообщил о возможном дефиците парковочных мест в будущем жилом комплексе.
В своем обращении депутат указал, что застройщик — СЗ «Успех» — планирует обеспечить только 0,3 парковочного места на одну квартиру, что, по его мнению, может привести к дополнительной нагрузке на дворовые территории и уличную инфраструктуру.
Редакции ProGorodSamara удалось выяснить, что изначально застройщик планировал возвести подземную парковку для обеспечения всех жильцов машиноместами. Подтверждение этому можно найти на сайте Дом.рф (проектная декларация №63-000861 от 13.02.2024).
Однако позже проектное решение было пересмотрено с учетом фактического спроса на машино-места и особенностей эксплуатации подобных объектов. Согласно проектной документации, в процессе реализации проекта схема размещения парковок на основной территории действительно была скорректирована: показатель в границах придомового участка был скорректирован до 1 машино-места на 3 квартиры с учетом перераспределения парковочных мест на дополнительную территорию.
Для размещения части парковочных мест вне границ основного участка на придомовой территории застройщик выкупил дополнительный участок, ранее принадлежавший компании Ростелеком, который находится в его собственности. Территория расположена в шаговой доступности от жилого дома, предусмотрена проектной документацией как постоянная парковочная зона и будет использоваться для размещения оставшихся машино-мест.
По опыту реализации аналогичных проектов, значительная часть покупателей не приобретает машино-места в подземных паркингах. В связи с этим было принято решение в пользу более востребованного формата наземного размещения, — говорит представитель СЗ «Успех».
С учетом придомовой территории и дополнительного участка общее количество парковочных мест составляет 142, что соответствует действующим нормативам обеспеченности — одно парковочное место на одну квартиру.
При этом отклонение, о котором идет речь, касается исключительно распределения парковочных мест между участками, а не их общего количества.
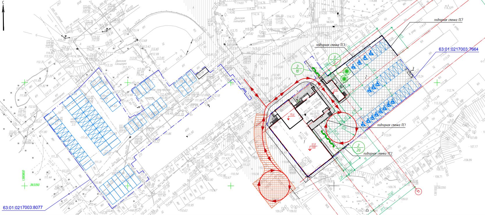
Общественные обсуждения данного проекта запланированы в период с 19 по 26 марта. Чтобы у жителей была возможность ознакомиться с полной картиной проекта, прикладываем генплан территории.
Новый генплан прошел экспертизу еще в прошлом году, и действующее законодательство допускает корректировку проектных решений при соблюдении установленной процедуры согласования. При этом у профильного ведомства возникли замечания к проектному решению, связанные с требованием о смежности участков. Мы обратились за разрешением на перераспределение парковочных мест между основным и дополнительным участками, так как данное решение соответствует реальным сценариям использования и позволяет эффективнее организовать парковочное пространство, — объясняет представитель СЗ «Успех».


План проекта застройки на ул. Стара-Загора 249а.


